10932:売地 豊島区池袋本町3丁目 建築条件付土地
| 価格 | 7,980万円 |
|---|---|
| 所在地 | 豊島区池袋本町3丁目 |
| 交通 | 東武東上線 東武東上線 下板橋駅まで 徒歩4分 JR埼京線 JR埼京線 板橋駅まで 徒歩11分 都営三田線 都営三田線 新板橋駅まで 徒歩12分 |
| 土地面積 | 65m²(19.66坪) |
| 私道面積 | |
| 坪単価 | 405.84万円 |
| 学区 | 小学校区:池袋本町小学校 中学校区:池袋中学校 |
| 建ぺい率 | 60% |
|---|---|
| 容積率 | 300% |
| 地目 | 宅地 |
| 用途地域 | 準工業地域 |
| 現況 | 更地 |
| 土地権利 | 所有権 |
| 取引態様 | 仲介 |
| 引渡時期 | 相談 |
| セットバック | |
|---|---|
| 接道 | 西 3.4m(幅員) 私道 |
| 諸費用 | |
| 国土法届出 | 不要 |
| 都市計画 | 市街化区域 |
| 他法条例 | |
| 建築条件 | 条件付 |
| 取引条件有効期限 | 令和08年5月18日 |
特色
建築条件付売地、公営水道、公共本下水、都市ガス、電気、更地です、工業系用途地域、駅まで徒歩10分以内、スーパーまで徒歩10分以内、公園まで徒歩10分以内、診療所まで徒歩10分以内、私道面、西道路
コメント
弊社なら希望条件登録で仲介手数料無料!
東武東上線「下板橋」駅歩 4分
JR埼京線「板橋」駅歩 11分 3駅3路線利用可能!
都営三田線「新板橋」駅歩 12分
閑静な住宅地の一角 建築条件付き土地・約19坪
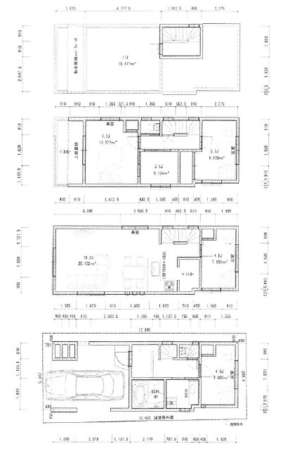
3SLDK+P+ルーフバルコニー 床面積約127.62㎡の建物参考プランあり 土地+建物総額:10,980万円(税込)
周辺地図
位置情報に関するご注意:現在位置情報は精査中の為、正確ではない場合があります。あくまで参考程度の情報となります。







