23302:MS グランドコンシェルジュ池袋本町ウエスト
| 賃料 | 12.4万円 |
|---|---|
| 共益費・管理費 | 5,000円 |
| 所在地 | 豊島区池袋本町4丁目 |
| 交通 | 東武東上線 下板橋 徒歩3分 JR埼京線 板橋 徒歩6分 都営三田線 新板橋 徒歩9分 |
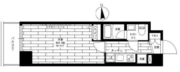
| 間取 | 1K |
| 総戸数 | 46戸 |
| 面積 | 27.06m²(8.18坪) |
| 築年月 | 2020/07 |
| 敷金 | 1ヶ月 |
|---|---|
| 礼金 | 1ヶ月 |
| 保証金 | - |
| 建物構造 | 鉄筋コンクリート造 |
| 所在階 | 4階/8階建 |
| 学区 | 小学校区:池袋本町小学校 中学校区:池袋中学校 |
| 取引態様 | 仲介 |
| 更新 | 可 2年 更新料:新賃料1ヶ月 |
| 敷引・償却 | 1ヶ月 |
|---|---|
| 火災保険 | 有20,000円 保険期間2年 |
| 保証会社 | 必須 |
| 駐車場 | |
| 諸費用 | 24時間サポート料19,800円 鍵交換代22,000円 |
| 入居時期 | 相談 |
特色
バストイレ別、ガスキッチン、ガス2口以上、室内洗濯機置場、エアコン、収納、洋室、CATV、BS、CS、浴室乾燥機、エレベータ、オートロック、TV付インターホン、宅配ボックス、二階以上、インターネット対応、駐輪場、独立洗面台、防犯カメラ、保証会社加入義務有
コメント
築浅(#^.^#) Wi-Fi無料&24時間ゴミ出し可能♪
周辺地図
位置情報に関するご注意:現在位置情報は精査中の為、正確ではない場合があります。あくまで参考程度の情報となります。
















